《歙县乡镇管道燃气发展规划(2020~2030年)》公示
为适应城市发展,满足规划期内乡镇实现管道燃气覆盖目标、指导歙县乡镇管道燃气设施建设和管理,根据《歙县城市总体规划(2011-2030年)》及有关法律法规,编制了《歙县乡镇管道燃气发展规划(2020~2030年)》。现将规划方案予以公示,欢迎广大市民对规划方案提出意见和建议。
一、公示时间 2021年1月8日—— 2021年2月7日
二、公示方式和地点
网上公示:http://www.ahshx.gov.cn(歙县人民政府网站)
现场公示:歙县住建局五楼公示栏
三、公示意见反馈方式
1、联系人:吴彩璋 电话:0559-6515293
2、信件寄往:歙县住建局 邮编:245200 (信封请注明“规划公示意见”)
四、公示内容
(一)规划范围:本次乡镇管道燃气发展规划范围为深渡镇、北岸镇、许村镇、溪头镇、杞梓里镇、霞坑镇、岔口镇、街口镇、王村镇、三阳镇、坑口乡、上丰乡、昌溪乡、武阳乡、金川乡、小川乡、新溪口乡、璜田乡、长陔乡、森村乡、绍濂乡、石门乡、狮石乡等10个镇、13个乡全部行政管辖区。
(二)规划目标
1、结合总体规划、能源政策,调整能源结构,积极发展利用天然气、丙烷等清洁能源,确定燃气发展目标及发展方式,提高燃气气化率,确保天然气、丙烷成为歙县乡镇能源体系中的主体能源。
2、建立规划范围内的天然气、丙烷管网骨架系统,加快燃气管网和设施的建设,完善输配气系统,进一步提高管道燃气系统的供应能力和安全可靠性。
3、构建燃气安全储备体系。
4、制定促进发展、安全管理的政策和制度,鼓励用户节约用气、错峰用气,积极推广节约型燃气用具,促进燃气综合利用。
(三)规划内容
1、气源规划
(1)深渡镇、北岸镇、王村镇镇区采用LNG气化站或LNG瓶组站作为主供气源,同时LNG可作为主供气源和调峰、应急气源。
(2)其他乡镇镇区均采用小型丙烷储罐供气,同时丙烷可作为主供气源和调峰、应急气源。
(3)规划范围内的农村用户均采用小型丙烷储罐供气,同时,丙烷可作为主供气源和调峰、应急气源。
2、燃气气化率
结合歙县各乡镇管道燃气使用现状及其发展规划,估算各乡镇在规划年限的居民用户气化率如表1-2所示。
表1 歙县各乡镇镇区居民用户气化率(天然气)
|
序号 |
区域 |
2025年(%) |
2030年(%) |
|
1 |
深渡镇 |
70 |
85 |
|
2 |
北岸镇 |
70 |
85 |
|
3 |
王村镇 |
70 |
85 |
表2 歙县各乡镇镇区居民用户气化率(丙烷)
|
序号 |
区域 |
2025年(%) |
2030年(%) |
|
1 |
许村镇 |
70 |
85 |
|
2 |
霞坑镇 |
70 |
85 |
|
3 |
杞梓里镇 |
70 |
85 |
|
4 |
三阳镇 |
70 |
85 |
|
5 |
昌溪乡 |
—— |
70 |
|
6 |
岔口镇 |
—— |
70 |
|
7 |
金川乡 |
—— |
70 |
|
8 |
武阳乡 |
—— |
70 |
|
9 |
小川乡 |
—— |
70 |
|
10 |
新溪口乡 |
—— |
70 |
|
11 |
街口镇 |
—— |
70 |
|
12 |
璜田乡 |
—— |
70 |
|
13 |
石门乡 |
—— |
70 |
|
14 |
狮石乡 |
—— |
70 |
|
15 |
上丰乡 |
—— |
70 |
|
16 |
溪头镇 |
—— |
70 |
|
17 |
坑口乡 |
—— |
70 |
|
18 |
森村乡 |
—— |
70 |
|
19 |
长陔乡 |
—— |
70 |
|
20 |
绍濂乡 |
—— |
70 |
规划范围内的农村居民用户近期不发展,远期气化率为40%。
3、供气规模
(1)近期各乡镇镇区天然气年用气量为585.59×104Nm3/年,平均日用气量为1.93×104Nm3/d,高峰小时用气量为1893.93Nm3/h;远期各乡镇镇区天然气年用气量将达到1446.13×104Nm3/年,平均日用气量为4.29×104Nm3/d,高峰小时用气量为4380.74Nm3/h。
(2)近期各乡镇镇区丙烷年用气量为946.11t/年,平均日用气量为2.59t/d,高峰小时用气量为528.7kg/h;远期各乡镇镇区天然气年用气量将达到3150.6t/年,平均日用气量为8.63t/d,高峰小时用气量为1735.69kg/h。
(3)远期规划区内农村用户丙烷年用气量为2913.71t/年,平均日用气量为7.98t/d,高峰小时用气量为2462.82kg/h。
4、储气调峰
(1)LNG供气区域
本规划中采用天然气供气的各乡镇气源为LNG气化站及LNG瓶组气化站,根据《城镇燃气设计规范》(GB50028-2006)2020年版中的描述,储气容积应按1.5倍计算月高峰日供气量确定。经计算,近、远期所需储气量(折合LNG水容积)为56.52m3及112.91m3。
根据深渡镇、北岸镇、王村镇镇区LNG气化站及LNG瓶组气化站的建设规模,在LNG供气区域内的LNG近远期储量分别为65.4m3及115.4m3,可满足供气区域内近远期的储气调峰需求。
(2)丙烷供气区域
本规划中采用小型丙烷储罐供气的乡镇,根据《城镇燃气设计规范》(GB50028-2006)2020年版中的描述,储气容积应按1.5倍计算月高峰日供气量确定。经计算,近、远期所需储气量(折合LPG水容积)为7.65m3及28.13m3。
根据各乡镇小型丙烷储罐供气站的建设规模,在丙烷供气区域内的丙烷近、远期储量分别为23m3及79m3,可满足供气区域内近远期的储气调峰需求。
5、场站规划
本规划建设的场站类型有LNG气化站、LNG瓶组站、小型丙烷储罐供气装置。
(1)LNG气化站
本规划近期建设1座北岸镇LNG气化站,该站视市场发展情况考虑远期扩建。
北岸镇LNG气化站站址如下:北岸镇大伏路以东、大一路以北的空地,近工业园区。
储罐规模:2×50m³LNG储罐,分期建设;
设计供气规模:3000Nm3/h;
用地面积:5272.46m2(7.90亩)。
(2)LNG瓶组气化站
本规划近期拟在深度镇镇区建设LNG瓶组气化站2座、王村镇镇区、王村镇柏山村欧洲小镇各建设LNG瓶组气化站1座,共计4座; LNG瓶组站皆为无人值守站。
LNG钢瓶规模:22×175L ;
设计供气规模:500Nm3/h;
用地面积:231m2(0.347亩)。
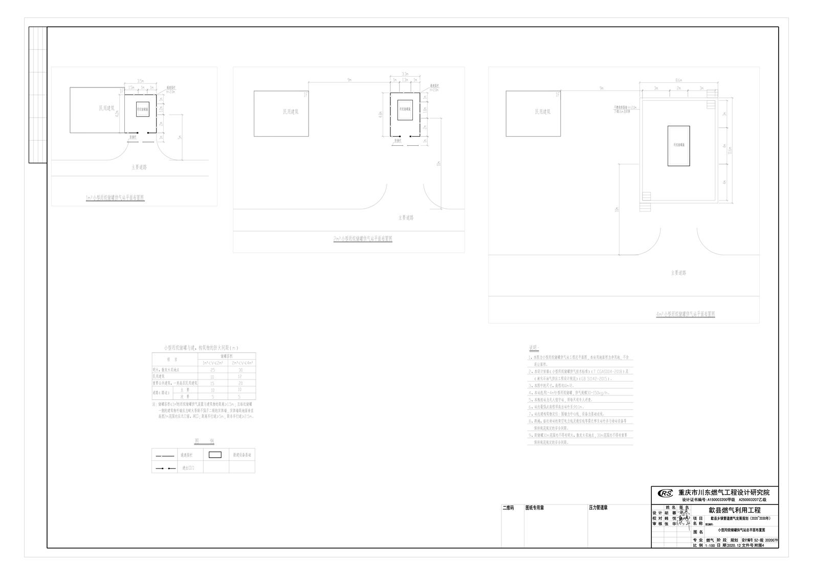
(3)小型丙烷储罐供气装置
本规划近期建设8座小型丙烷储罐供气装置,远期新建291座小型丙烷储罐供气装置。
储罐规模 :1m³/ 2m³ /4m³小型丙烷储罐供气装置;
设计供气规模:30kg/h、50kg/h及100kg/h。
用地面积:100m2。
6、管网规划
本项目根据用户和气源场站的分布情况,尽量做到少产生穿越工程量进行中压管网的敷设。
天然气中压管道设计压力为0.4MPa,近期建设21.47km,远期建设19.54km。
丙烷中压管道设计压力为0.1MPa,近期建设17.78km,远期建设89.83km。
(四)、近期建设计划
至2025年完成以下工程量:
1、完成《歙县乡镇燃气发展规划(2020-2030年)》的编制工作;
2、完善歙县各乡镇具备通气条件区域的供气设施,做好供气服务;
3、完成北岸镇LNG气化站施工图的设计及一期工程建设;
4、完成4座LNG瓶组气化站施工图的设计及建设;
5、完成8座小型丙烷储罐供气站施工图的设计及建设;
6、完成近期通气乡镇镇区中压管道的建设;
(五)、远期建设计划
至2030年完成以下工程量:
1、重点完成北岸镇LNG气化站的扩建,为歙县各乡镇用气提供及时、有力的保障;
2、完成采用天然气供气的乡镇的中压管网的建设;
3、完成各乡镇291座小型丙烷供气装置的建设;
4、完善歙县各乡镇具备通气条件区域的供气设施,做好供气服务;
5、进一步完善场站设施自控系统,完成歙县各乡镇燃气输配系统信息化管理体系的建设。
(六)、规划投资匡算
本工程项目建设总投资9538万元,建设投资9481万元;其中近期工程建设费用为2190万元,远期工程建设费用为5510万元。
(七)规划图纸
(1)供气点布置总图
(2)LNG瓶组站布置总平面图
(3)智能微管网站布置总平面图




皖公网安备 34102102000111号
不良信息举报